



Umbau und Erweiterung eines Altstadthauses
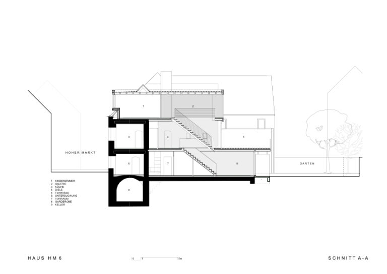
Durch die Dachgeschoßerweiterung wird der zusätzliche Raumbedarf abgedeckt und die Aussichten vom Erweiterungsbaukörper optimiert. Der neue Stiegenaufgang strukturiert die Nutzungsbereiche und bringt Sonnenlicht tief in das Gebäude.