Haus SB




Projektbeschreibung
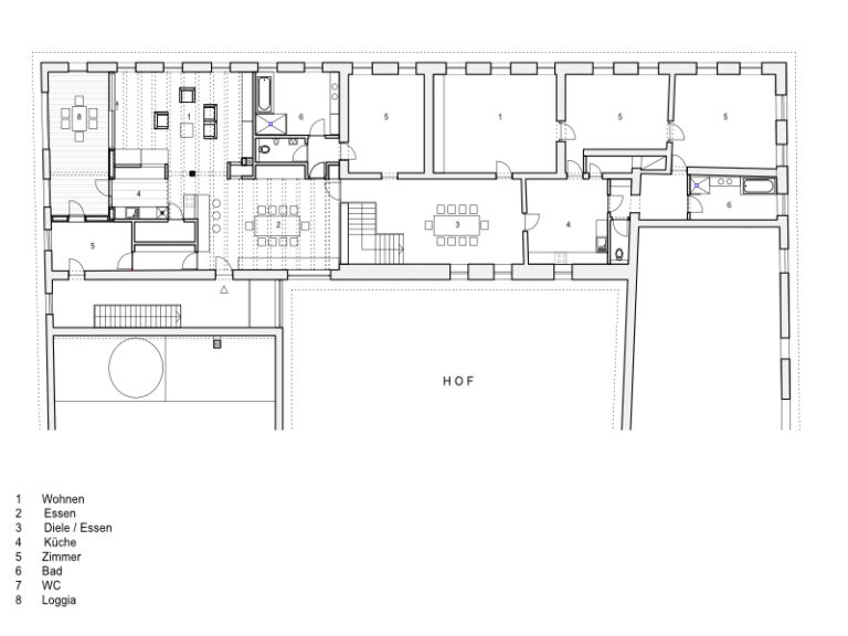
Neue Wohneinheit in einem Vierkantbauernhof
Der leerstehende Getreidespeicher (Troadkasten) wird mit einem großzügigen Durchbruch zum Wohngebäude geöffnet und als Wohn-und Essbereich neugenutzt.
Bestehende erhaltenswerte Elemente (Tramdecke und Wandgemälde) werden erhalten und restauriert, die neuen Einbauten treten in einer zeitgenössischen Sprache mit dem Bestand in einen Dialog.