



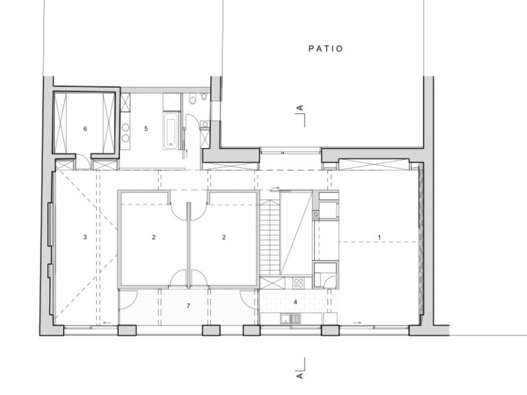
Loftwohnung in einem ehemaligen Heuboden
Die neue Wohnung ist als ein Großraum konzipiert, der das stützenfreie Volumen des Heulagers nutzt. Als „Haus im Haus“ sind die Schlafzimmer in das Loft hineingestellt.
Die Südfassade ist vollverglast, davor angebrachte Holzlamellenelemente dienen als Sonnenschutz und vermitteln für die Einbindungen in den Vierkanthof.